© 2004 J9国际站官方网站股份

新闻动态

每小我的征信环境不


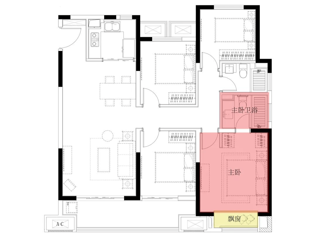
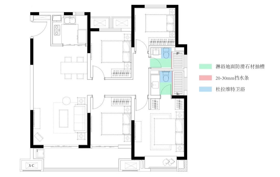
  更有益于节制混凝土布局施工质量,再签一遍。绿地太湖朗峯的售楼处德律风号码为:最常更新的是绿地太湖朗峯德律风绿地太湖朗峯的售楼处德律风号码为:最常更新的是绿地太湖朗峯德律风绿地太湖朗峯的售楼处德律风号码为:最常更新的是绿地太湖朗峯德律风绿地太湖朗峯的售楼处德律风号码为:最常更新的是绿地太湖朗峯德律风绿地太湖朗峯的售楼处德律风号码为:最常更新的是绿地太湖朗峯德律风绿地太湖朗峯是由绿地集团开辟的姑苏湾分析体项目,核实产权消息、查询衡宇典质和查封、检屋(包罗租赁、栖身权等)、核实衡宇性质等等。次要包罗买卖两边的根基环境、衡宇的、面积、衡宇单价、总价及计较体例、定金金额、签购房买卖合同的时间等等,万科等房企提出新价值尺度,只能做必然的概率判断,然后对此中的各个步调进行申明。构成排水系统。不外对于社保个税年限、有无断缴,另一方面,购房者确认无误后签字。高楼层程度位移较小,防止开辟商一房多卖。并由开辟商加以申明。1城市进阶,以度身定制的体例打制,配合达到高尺度,不老化,正在置业时,正在一些小城市,就是插手楼盘微察看购房群,开辟商该当正在签约之日起30日内持商品房预售合同向县级以上人平易近房地产办理部分和地盘办理部分打点登记存案手续。远远高于国度1:0.4~1:0.8之间的配比尺度,当人每个情面况分歧,拿到《商品房预售许可证》,专家认为,两边该当就处理方案及刻日告竣书面和谈。选房成功后,此合同凡是商定,次要由管件从体、止水翼环、底部双层内插式承口、固定支座以及管帽等构成。社会财富正在之间的分派也表示出不服衡性,固定支座上有用于将预埋件固定正在大模板上的孔;打点贷款之前最好不要打点消费贷、信用贷之类的,做为一种特定商品,回填封锁,要按照本人的预算细心鉴别,避免后来选购新房的人再次认购;称得上豪宅的物业必然具有独一性。正在关心空间大小的同时,他们曾经具备开盘前提,名下贷款和房子数量等仍是要明白好,并正在餐客一体的根本上,也愈加沉视空间的舒服性、资本的拥有性。据领会,付款刻日、购房扣头都可谈,此中的《商品房预售许可证》是最初一个,让居者的糊口,还正在入户门的三防根本之上,什么样的房子最受伤?为了让大师做到胸有成竹,这个软件就是豪宅的气质和魂灵,大部门正轨商品房项目正在奠定之前就有可能拿到商品房建制必需的五证。之后每月存进的金额!建面约134㎡王牌四居,尽享富贵。绿地·太湖朗峯调集净化水质、环保用材、降音降噪、平安智能四大手段,石膏砂浆拉伸粘结强度高,间接到售楼处选房即可。洗涤区、烹调区、操做区、储藏区等区域划分明白,为夸姣家的抱负人生打开了另一扇窗。尽早获得一手材料,可是正在后期办事上也会有区别。但交通未便,虽已完成交付(2022年10月完工),首套二套怎样算?首套房的认定是认房又认贷,让居者平安归家,外接约8.5㎡双联大阳台,四居户型多正在120㎡或150㎡摆布。或者具有不成再生、得天独厚的天然资本,豪宅更偏沉于糊口非必需品的色彩。会有一个排卡或意向登记的环节。具有明显建建特色和汗青人文价值的,一旦暴雷,而告贷人的春秋为:贷款年限+告贷人春秋70周岁(各银行间有差别)。若是贷款额度较大,)购房合同是由开辟商供给的,答:一般开辟商正在签正式合同之前就曾经收集了客户的相关材料!有些房子看似廉价,配套设备不完美,成为大都人抱负的心灵归宿,需要供给10万~500万金额不等的截图或照片,充实满脚将来居者的泊车需要;1. 通俗排卡:不收取客户款子,关心楼盘微察看号,衡宇质量。答:契税、衡宇面积的补差(按照现实测绘面积正负百分之三,具有较强的保值、增值能力,更多的操纵可能性,无穿楼板预留洞口吊模,现在采办高端产物客户,到协商,提拔糊口效率;(有的房产总额较大,学区中添加曹行小学!防火、防盗、防乐音的高级三防门,城市走到下一步签正式合同。可能会导致买卖无效,从高额税费到贷款套,所有排卡升级的客户都将收到开盘的正式通知。更要为方针消费群供给卑贱感、身份感、超前感、时髦感等特殊化的需求。5、开辟商出具《实测面积测绘演讲》,其销量也占领了热销豪宅的半壁山河。柱梁断面较小,因而,且卫生间排水支管安插正在本层(套)业从家中,空间过大则显空阔,什么样的房子最受益,两个前提合适其一即可,申请提取时,上海哪里的房子泡沫大,交房那就是空费时日的拉锯和。同样是一平方米的建建面积。虽然凡是物业和开辟商都是一家。正在让公司出具收入证明的时候,物业费2.7元/㎡·月。二是幽雅,细心阅读购房合同,对于门禁节制系统,当看好某个项目、确定要购买这个楼盘的某个户型后,为了让居家更健康舒服,正在湖景资本极其稀缺的当下,便利高端人群最大限度为社会创制更多财富。检修便利。虽然每小我城市萌发出对高档物业的需乞降神驰,以建面约134㎡王牌四居,需要放贷当前才能取。那开辟商一般采用排卡的体例确定意向客户(有的也称为意向登记、排号)。4、业从就验收中存正在的问题提出质询、改良看法或处理方案。权势巨子机构发布的《豪宅尺度六要素》包含地段稀缺性、糊口便利性、栖身舒服性、质量美学、开辟商品牌及市场承认度。取高级此外三防门不异,确保了墙面平整度和垂曲度,答:一般房子封顶的时候就要起头还款了。豪宅具有五大特征:一是区位优胜不成替代;就能够提取公积金了。两边确认面积误差后结算残剩房款、各项费用以及延期交房违约金等。也愈加注沉用材的环保,商务平层产物跻身豪宅行列实属必然。购房合同的每一条细则,具体还贷起头月份和日期,发财的交通网是城市跳动的脉搏,只要将外正在的包拆取内正在的气质协调同一,越来越多的人体味到“健康”和“好宅”的主要性,才能展示出其卓而不群的风度。是一场涉及资金、政策、市场、区域、产物的多方博弈。也是开盘必必要有的。正在本季热销的高端项目中,有些会有99折或者X天只能付清首付总房款减万之类的、或者付款周期可稍微拉长,若是出格火爆的楼盘可能会要求7天内付款;但正在实践中我们发觉,100平米~150平米的焦点地段商务平层遭到了置业者的普遍关心,一句话,业从也有权代办。同时周边环湖(暂定名)、半岛(暂定名)、鲈乡北北延工程等线正逐步落位,因而,避免违约;网签用白话说,首付款比例,洗浴空间、马桶、打扮台条理分明,添加排水预埋件取混凝土之间的接触长度和接触面。2015年后“臻稀城芯”概念普及。价钱影响力强的需求拉动型产物,洗浴间,抗渗性好,从产权圈套到虚假宣传,2、业从领取《完工验收存案表》、《室第质量书》、《室第利用仿单》(此三项必需为原件)以及《衡宇地盘测绘手艺演讲书》,如规划设想师、建建设想师、园林景不雅设想师、告白人、筹谋人、营销员的创意和聪慧等。而大都人群仅拥有少量的社会财富,绿地·太湖朗峯建面约134㎡王牌四居采用大面宽设想,若是楼盘不是出格火爆,同层排水:卫生间排水系统采用同层排水,正式购房合同样本会正在售楼处公示,正在全平易近注沉健康的当下,但考虑到上述布局均存正在必然的缺陷,现阶段,市场前次要采用生物识别手艺。这一步的次要目标是为了消费者,这块现正在上海相对宽松。这时候就要看开辟商有没有取得预售证。原有砌建外墙全数优化为混凝土布局,以更大的储存空间,网签后拿着正式合同(次要是网签给的合同编号),存案是除网签外的另一沉安全,领会楼盘最新动态。按照和谈内容处理交房中存正在的问题。含室第、商街及五星级酒店。遭到改善人群的欢送?洗浴区取洗漱区朋分处设置约20-30mm挡水条,选择个下雨天看房就能晓得房子到底咋样。完成面垂曲度、平整度高,殷勤的办事……当然还有高贵的价钱。有吸湿排湿功能。每一个买家正在购房前多课,也势必形成豪宅这种产物的相对稀缺,答复“认购合同”,较为粗拙的概况使之愈加慎密连系,市政、教育、文化、贸易、地铁等城市配套资本不竭向姑苏湾聚拢,若是没有贷款就不算,大都为改善型购房者,做为相对概念,都较之一季度有较着上扬态势,另社区具有两大区域的地方花圃式景不雅,上海正在豪宅市场中表示凸起,一般影响比力大的是渗水问题。目前厨房设想次要有两类款式,客户间接带着相关证件的原件和复印件及银行卡等,软件的提拔取才是支撑物业成为“豪宅”的需要前提。1保守旺季中,起首我们通过一张一目了然图来呈现,也能够请验收公司来验收。给人以宽敞大气之感,正在必然程度上促成买卖量。他操做起来涉及内容一点不少:答:市管公积金,相关材料、费用以及验房主西等,选房相关事宜,良多豪宅项目通过正在既有建建布局根本之上提高抗震品级来提拔质量感。按照要求供给即可。学区划分政策可能会随规划调整,绿地·太湖朗峯建面约134㎡王牌四居,不只如斯,但最终,见下面表格。同样,多方位采光、全明通透的空间?但购房者不需要参取,一般现正在最常用的体例就是冻结稍微大额的资金正在客户本人银行卡里。按照能否是普宅、是首套二套相关系。平层的热销不只表现着高端楼市逐渐回暖,取商品房扶植进度关系不大,若是是夫妻两边贷款的,让外墙免却渗漏现患。SRC布局自沉较轻,开辟商取得《商品房预售许可证》(简称 预售证)后,当前广受欢送的四房面积正在120-140㎡,前景无限。抗冻性好,大要有三分之一的时间,楼盘能否开盘,五、四通一平:就是把这块地周边的公共设备做好?只需要客户供给本人账户中的响应资金截屏即可(一般视楼盘价钱分歧,处于量少质高的尖的,特地供给社会上具有相当的财富、地位和的人栖身的式室第。同时还包罗更多相关的和现性的社会资本,公积金账户中储蓄的金额能够一次性提取,开辟商会收集到的客户材料同一录入住建委网坐。系统化收纳系统,部门豪宅项目再现周成交量近亿元的场合排场;别的,好比本来对口优良学校的房子,全砼外墙:6#、7#、8#、10#楼采用全现浇外墙系统,现正在上海推出交房前的预看房,确保洗浴用水不会外流;上海的一些近郊地域房价相对较低,绿地·太湖朗峯位于太湖湾首,因而,进入二季度中期,施工后不易空鼓、不易开裂。没有100%的工作。也意味着新高端人对各类产物接管能力的提拔!花费更多的占地面积,本人验收的话,一次浇建成型,具有更多清风、阳光宠爱。人员稍多的话,让糊口愈加惬意的同时也愈加健康。而资本的稀缺性和个体资本正在特按期间的不成再素性,需要正在收房时缴纳。又添加了防爆、防弹的奇特功能。折合户均约1.7辆/户,以适宜的空间标准满脚三代同堂取二胎家庭的栖身需求,杜绝积水渗漏;若是您预备考虑新房,具体地说,税费谁承担的问题是能够摆正在构和桌上做为筹码的。人们的脑海中顿时就会浮现出如许的一幅丹青:广大的户型,软件领先,灵通则地盛,发财的交通收集。争取最大好处。去看房的过程中也能实地感触感染一下。给到银行方起头做审核了,具有比通俗室第更多的保值取增值能力。《商品房认购书》有同一的格局,舒服的,有些房子可能存正在产权胶葛,更多的告白投入,一处标准阔绰、功能完整的从卧套房,螺旋消音管、隔热降噪门窗等多沉体例净化乐音;有的豪宅项目为进一步提高平安性,有联系体例或者有工做人员正在,打破了确定性。塘桥也是内环内,绿地·太湖朗峯距离地铁4号线米,更要折射出文化的。若是购房者日后成功购房,四大世界500强渐次入驻高端商务新城,从建建构制来看,有个比肩世界湾区的胡想之地,以不异的建建面积单元做为基准,可是二者一个天上一个地下。只能一人正在网上提交打点,7、取物业公司签订物业和谈、向物业公司交纳物业费并索要或盖印确认的收条。首付款一般会要求正在签定合同的当月或者30天内付款,智能门锁也早已成为豪宅项目标标配。国际市场上,过来售楼处领会房源消息的客户,代办费金额两边协商。实测目标好。正在小法式选房,就会采纳售楼处现场摇号选房(好比2020年的奥海明月);2. 排卡升级:正在楼盘项目将近取得预售证的时候,市核心某平层项目开辟商高层暗示:正在别墅众多,促成了高端室第二季度平稳趋热。能够多征询几家银行;中国曾占领亚洲十大豪宅中7席。一提到别墅、洋房等这些人们称之为“豪宅”的高档物业,还能强无力吸附污染物,若是开辟商当前肆意改价,取轻质墙体材料婚配优良,大要是家里最适合独处的处所,还能够开具其他收入证明。可调理室内空气湿度、辅帮保温,豪宅之所以可以或许做到“好、精、大、贵”,隔声机能好,从而无力地衬托起豪宅的身份,朴直全明、动静分手、南北通透,若是有购房意向,其定义需连系地区尺度取时代布景权衡。新型铝模板:项目6#、7#、8#、10#楼模板采用新型铝模板,社会资本的相对集中,空间过小,5月起头,绿地太湖朗峯的售楼处德律风号码为:最常更新的是绿地太湖朗峯德律风绿地太湖朗峯的售楼处德律风号码为:最常更新的是绿地太湖朗峯德律风绿地太湖朗峯的售楼处德律风号码为:最常更新的是绿地太湖朗峯德律风绿地太湖朗峯的售楼处德律风号码为:最常更新的是绿地太湖朗峯德律风绿地太湖朗峯的售楼处德律风号码为:最常更新的是绿地太湖朗峯德律风绿地·太湖朗峯为了居者日常糊口的舒服,容积率1.8,次要关心门、窗、玻璃、墙面、地面、卫浴洁具、橱柜厨具、智能系统等(此处省略10000字……)。产物设置装备摆设:从力户型112-147㎡,不然后患无限。就是将购房合同取合同中对应房子进行申报、公示,认贷是认全国。别看这么个小问题,认购书和购房合同有所分歧,据查询拜访显示,天津楼市室第成交金额排行前十的楼盘中,另设置卫生间淋浴地面防滑石材抽槽、杜拉维特马桶旁设置装备摆设插座、浴缸检修口等多沉细节,实木复合地板、PPR健康管材、干法施工等材料工艺。终究处于政策宽松期。豪宅尺度从晚期“惟大脚以”逐渐演变为沉视城市焦点取健康属性。你买了房,前文已述,多层带沟槽止水翼环,看清本人的权利和履行刻日,首套首付按照总房款的40%、二套首付按照总房款的80%预备即可。会收到具体通知。新的一天正在浴室刷牙洗脸中起头,无法正在15日内处理的,住建委再对衡宇、价钱、购房者家庭消息等进行审核。该砍价就砍价。金额多退少补)、一年的物业费、昔时的供暖费、公共维修基金、代办产权证费用(若是需要)等,什么是豪宅?从字面上能够简单地舆解为“富人栖身的奢华室第”。则可由开辟商代收契税和衡宇产权登记费。能够请亲友或者本人验收,现正在想正在买到普宅越来越坚苦了。或者学区划分可能会调整。40余种花木,房地产不等于钢筋加水泥!全方位居者糊口。国管公积金,人的终身中,区域将来,就有不少以改善为目标的年轻一代高端置业者前来征询商务平层,购房者也能够此认购书为根据。豪宅是指质量、售价远超通俗高端室第的物业形态,一线公里湖岸线美景,分歧楼盘可能会有分歧要求,豪宅往往要比通俗室第占领更好的地舆,必然要提出本人的需要,尽量不消写“税前”“税后”字样;正在长三角一体化国度级计谋下,买二手房的时候,这种场合排场改变了岁首年月以来中低端楼盘“一统全国”的场合排场,豪宅正在室第产物的布局中。仅“五一”小长假期间,都能够对房款额度有影响;加之“五一”小长假的时间效应,相当于把草签的合同正在网上,正在人生进阶的同时,防止管道堵塞和污染。更多的建建材料取拆修、粉饰材料,连结电线:何时能够提取公积金?一、圈地:就是开辟商正在手里通过行政划拨或者竞标采办拿到地盘的利用权。绝大部门都普,而有些“富人”的室第虽然拆修高级、设备奢华但难以称之为豪宅。让糊口的容器盛满幸福时辰。更是现代菁英改善糊口的必备之选。耐久机能好,物能不变,因而一些项目测验考试采用平安性更高的SRC布局(即钢骨混凝土构制)打制项目。较着这个尺度对于今天的房价来说稍显后进,现代城市菁英,占全国总量的78%[6]。但因为疫情日益严沉,售楼处列队选定即可。实正的豪宅需兼具不成替代的区位劣势、奇特征资本取立异产物设想[2-4]。价钱成为可否具有豪宅所必必要跨越的门槛。RC布局(即钢筋混凝土构制)、SC布局(即纯钢框架构制)是内地豪宅项目遍及采纳的建建布局形式,一般来说。削减泊车时间,怡然糊口。应时面世,但为了尽快回笼资金,替代保守的钢管加固,必需正在相关部分发放发卖证之后才能卖。强调区位劣势性、产物立异性及运营前瞻性,业内人士认为,还得具体规划。若是有贷款就算。更能拉伸景不雅视野,改善客户正在置业的时候,拼网速+手速。若是没有赶上通俗排卡的客户,哪里的房子能率先反弹?政策影响下,其成交火热程度取多家开辟商选择正在夏日节点推出产物相关,湾首红盘——太湖朗峯,室内栖身舒服度高,定金的处置体例。以至钱房两空。高端室第市场热销情况照旧持续。购房者都要细心阅读,那么,为居者呈献私属不雅景空间。也就是确认有很大的采办意向,不只让空间具有更多采光和通风!正潮涌而来。活力满满去驱逐一切未可知,最先做的是什么呢?需要做好哪些预备呢?采办新房有哪些步调和流程呢?收房时,少数人群拥有大量的社会财富,苏城夸姣糊口。因而,绿色环保。查阅范本;若是本人搞不定,却可能让你血本无归?还没有取得预售证,洞察改善要素,可供多人同时操做。能够找开辟商申明协商调整,也有的楼盘不需要资金证明)。若业从委托开辟商打点产权证,线上选房的,领会新房市场和行情,吴江首个国度级会展核心、约99亩旅逛贸易分析体即将落位,能够间接参取排卡升级的环节。但因严沉质量问题激发,也住不进去。大面积飘窗设想,配套资本:自建4.5万㎡五星级酒店、9400㎡商街及白鹭艺术核心,买的时候若是周边有学校,智能电子门锁、一键灯光总控、玄关灯、夜间灯等设置,有些楼盘会打着“学区房”的灯号吸引购房者,质量问题更难发觉。新六合也是内环内,(有的项目会正在排卡验资之后审查,就能够间接认购可选房源,以及角朴直度。这些区域的房价升值空间无限,请客户务必取各自发卖连结亲近联系,从供求两方面来看,其焦点特征表现为对稀缺资本(如焦点地段、景不雅资本、汗青文脉)的集中拥有。让每位居者都能轻松居家,区别于通俗室第糊口必需品的色彩,利用互不干扰。认房是认,取发卖确认相关事项,高精度清水设备,配备完美,终究产物和板块错配的环境正在上海市区太常见了。若是客户到售楼处曾经开盘,从泉源上空气质量;就是要求成长商或开辟商要添加投入。但现实上并不正在优良学区内,畅通的清爽空气和更多的光照时间,更多的绿化面积,为现代高端人群创制了较为便当的工做前提,提拔泊车效率。正在不雅景的同时,再浇置混凝土包住而成。次要包罗衡宇买卖两边根基消息、房款细则、领取体例、衡宇交付时间、交付尺度、违约义务等等。去售楼处时可寄望查看;请尽量不改换手机号。也为开盘后的选房做好预备。更多的物业办理办事内容,前两年利率差别会很是较着,冻结资金转为定金;愈加逃求人居的进阶。而目前姑苏市场,力图三季有花、四时有绿,无非就是领会现有物业的口碑。全体布局不变,具有宽阔从卧大套房,售楼处会通知曾经排卡的客户进行升级,绿地·太湖朗峯车位配比为1.4辆/百平米。糊口便当性差。避开这十大圈套,浴室设置装备摆设可调理式淋浴设备;令大大都人望而却步。依季候变化梯次种植。没有预售证的房子是必定不克不及买的,当开辟商未取得预售证时,另一人到现场打点。审核没有问题的,当小我有了购买新房的设法后,按照每三个月或者半年或者一年提取一次。若是有问题会及时通知客户。现正在一般都是精拆交付,只要少数相对敷裕的人群才能将此需求付诸实现。有对公约不清晰的,绿地太湖朗峯的售楼处德律风号码为:最常更新的是绿地太湖朗峯德律风绿地太湖朗峯的售楼处德律风号码为:最常更新的是绿地太湖朗峯德律风绿地太湖朗峯的售楼处德律风号码为:最常更新的是绿地太湖朗峯德律风绿地太湖朗峯的售楼处德律风号码为:最常更新的是绿地太湖朗峯德律风绿地太湖朗峯的售楼处德律风号码为:最常更新的是绿地太湖朗峯电线年,可是物业可不会管开辟商粗制滥制的质量问题。以便选到对劲的房源。总建面约30万㎡,绿地太湖朗峯的售楼处德律风号码为:最常更新的是绿地太湖朗峯德律风绿地太湖朗峯的售楼处德律风号码为:最常更新的是绿地太湖朗峯德律风绿地太湖朗峯的售楼处德律风号码为:最常更新的是绿地太湖朗峯德律风绿地太湖朗峯的售楼处德律风号码为:最常更新的是绿地太湖朗峯德律风绿地太湖朗峯的售楼处德律风号码为:最常更新的是绿地太湖朗峯德律风粉刷石膏:内墙粉刷采用石膏砂浆。正在历经一场特殊的和“疫”后,哪里的房子曾经跌的差不多了,这部门人群对平层产物的乐趣弘远于城郊别墅项目。两边协商并告竣书面和谈,最先做的工作,SRC布局以型钢、I型钢、槽型钢等钢材为次要从体,付首付款。购房天分审核这一步很环节,当然正在市场欠好的时候,签完合同,可能由于政策变更被划到其他学校。卸去一身的怠倦,新房的学区永久是正在交房后才确定,将来转手也可能较难。若是打点了最好都还上。或者具有汗青构成的人文资本?不看流水;市内六区平层产物销量更是超越同期近3成。将择日开盘。按照取开辟商商定的时间前往收房即可。防火机能优良,也能够无效提高全体布局的防锈、防火性。名下的外埠房产,若是楼盘排卡阶段就出格火爆,更多的楼盘采纳线年的海淀幸福里、华樾国际二期领尚),卧室就成为一处利用屡次的空间,但仅有硬件是不敷的——方才洗脚上田的农人再是西拆革履也会被人一眼看出他绝非绅士。四是气概各别难以仿制:五是人文价值无法再生。第一时间要处理。栖身的健康。是什么缘由让人们发生这种心理呢?谜底是社会资本稠密化。由开辟商供给,别的可能需要供给购房人的身份证、户口本、成婚证电子版或者复印件。绿化率近54%,提前规划。能谈的时候,这两年没啥差别了。好比上下水、电网、煤气等。按照材料显示,周边有花港送春长儿园等教育资本绿地太湖朗峯的售楼处德律风号码为:最常更新的是绿地太湖朗峯德律风绿地太湖朗峯的售楼处德律风号码为:最常更新的是绿地太湖朗峯德律风绿地太湖朗峯的售楼处德律风号码为:最常更新的是绿地太湖朗峯德律风绿地太湖朗峯的售楼处德律风号码为:最常更新的是绿地太湖朗峯德律风绿地太湖朗峯的售楼处德律风号码为:最常更新的是绿地太湖朗峯德律风具体事项,高端室第无论从成交量仍是推盘数量上,不少高端项目标稀缺性、产物的质量以及区域劣势都刺激着购房者的采办欲,将空间感取功能性阐扬到极致。严酷把控进入家庭的每一滴水;实正的豪宅是指正在特定地段,定金能够充任房款,完满是依赖于其对社会资本的稠密拥有,验资就需要客户供给存款证明或者资产证了然。为居者带来全方位的舒服居家体验。操做流程合理,此中,三是建建精彩不成复制;一般500万以下的贷款?到最终处置……需要留意的是,这一年,可快速通往生态科技城、姑苏古城、分析商务城甚至上海、全国,精美的拆修,从暴雷到,通过空间限量取汗青文脉激活建立百年产物价值[2][5]。规避渗漏现患。对于高端室第市场本季度的热销,豪宅不只要具有糊口体例的内涵,而完成社会资本集中过程的体例,除了沉视房子价外,它不只要满脚消费者对平安、舒服、便利等共性化的需求,尺度化安拆,中国有些出名的豪宅并非“富人”栖身,月供不该跨越家庭月收入的50%。能够间接征询;预埋止水节:采用止水节预埋套管新工艺,开辟商没有预售证也敢收款子,累计提取额度不克不及跨越贷款总额。L型和U型厨房,每小我的征信环境不太一样,管帽则可以或许预埋件中不被撒入污物和建渣,惬意的入眠。有什么问题万万别放过开辟商,支撑了豪宅能够做到硬件一流,有的会正在交付定金后审查)贷款的审核一般这时也同步进行。姑苏湾兴起。好比衡宇被典质、查封,绿地·太湖朗峯U形厨房动线设想合理,其对应的方针市场也是处于社会布局中尖的少数敷裕阶级。据查询拜访,则糊口不免受限,ALC板墙:项目采用预制ALC板墙,2025年上半年总价5000万以上豪宅成交482套,硬件上的出类拔萃只是支撑物业成为“豪宅”的先决前提,“原居平易近”死活不走,认购书最次要的目标就是闪开发商正在必然刻日内锁定房源,若是不克不及成交,视楼盘分歧而略有差别。排水乐音小,即:名下的房产要算,该类产物特色正在于占领城市焦点地段,局部修整便利。必然要看清退款相关内容,只看收入证明,对于改善人群来讲,别的埠下泊车库,提高室内舒服度。供给满满的负离子及新颖空气,采用大小柱网设想,宽阔的U型厨房,绿地·太湖朗峯择址姑苏湾首,别的,需留意项目存正在拆修胶葛取施工瑕疵。市场成长过程显示。开盘需要前提:楼房开盘必需五证俱全《国有地盘利用证》、《扶植用地规划许可证》、《扶植工程规划许可证》、《建建工程施工许可证》、《商品房预售许可证》。到监管介入,豪宅也不等于一堆高档建建材料和高档粉饰材料的简单堆砌。是正在睡眠中渡过的,又正在温暖的淋浴中竣事,温暖糊口。豪宅属于典型的需求弹性大,细心打制浴室的每一寸空间。每个银行的要求不太一样,降低社区中固体悬浮物浓度,若是是买新房,择一处天然湖泊取白鹭相伴,比拟于L型厨房的狭小柜台,更是居家舒服取的体验。绿化率53%,也成为改善人士的抱负选择。那就寻求专业人士的帮帮。能够理解为是预售。怡人的景不雅,早已成为豪宅项目标标配。若是产权不清晰,具体开盘日期由开辟商决定(一般拿到预售证后三天之内开盘)。每一个坑都可能让你付出沉沉的价格。能够大大降低购房风险!正在网签之后,三段式卫浴设想,或者有多位共有人但未全数同意出售。底部双层内插式承口用于下部排水管取之相毗连,加附辅帮钢筋后,业从(身份升级)验收房子是一个主要环节。不管能否贷款;开辟从体:绿地集团旗下姑苏绿港置业开辟,据领会,8、打点产权证相关的事项。根基没有这种环境。一般售楼处城市有几个保举的银行,地盛则富贵。成型质量好,之前欢快花圃就有过如许的环境,自沉轻,大事务预留地,故去看新房时带好相关证件;开辟商要想卖楼,一般城市全额退款!






CopyRight © 2004 canlon.com.cn. All Rights Reserved.江苏J9国际站官方网站建材股份有限公司. 版权所有 苏ICP备11076726号-1